Aluminiowy wieszak belki
Wieszaki belki BTALU są stosowane do krytych mocowań belek. Wieszaki belki powinny być o 40 mm niższe od wysokości belki. W przypadku wieszaka belki 90 może być stosowana belka o wysokości 100 mm
Szczegóły produktu
Właściwości
Materiał
Aluminium AlMgSi 0,7 F26
Zalety
- Obliczone statycznie
- Możliwość mocowania belki w płaszczyźnie pionowej pod kątem 45 °
- Mocne i trwałe połączenia
- Odporność ogniowa R30
Zastosowanie
Połączenie
Element główny
drewno lite, drewno kompozytowe, drewno klejone warstwowo.
Element drugorzędny
drewno lite, drewno kompozytowe, drewno klejone warstwowo.
Stosowane
- Do połączenia elementów z drewna litego, kompozytowego lub klejone warstwowo, z elementem głównym o podobnych właściwościach w połączeniach belka-belka, belka-słup.
Discontinued Products
Variant Status Details
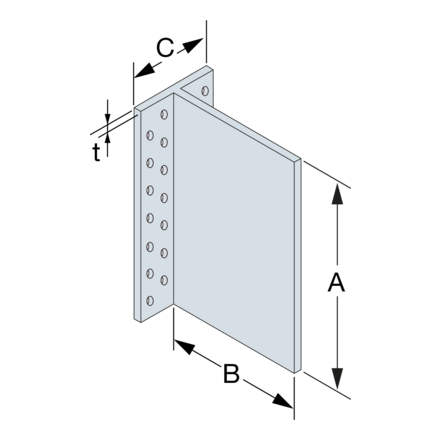
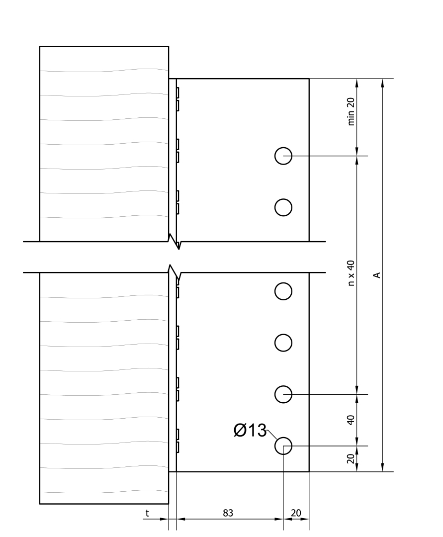
Dane techniczne
Wymiary złącza
| Referencje | Wymiary złącza [mm] | Otwory - belka główna | Otwory - belka drugorzędna | Ilość w opk. | Waga [kg] | ||||
|---|---|---|---|---|---|---|---|---|---|
| A | B | C | t | Ø5 | Ø8 | Ø12 | |||
| BTALU90 | 86 | 109 | 62 | 6 | 16 | 4 | - | 25 | 0.23 |
| BTALU120 | 116 | 109 | 62 | 6 | 20 | - | 3 | 25 | 0.3 |
| BTALU160 | 156 | 109 | 62 | 6 | 28 | - | 4 | 25 | 0.41 |
| BTALU200 | 196 | 109 | 62 | 6 | 38 | - | 5 | 15 | 0.51 |
| BTALU240 | 236 | 109 | 62 | 6 | 44 | - | 6 | 15 | 0.61 |
Otwory w belce drugorzędnej należy wywiercić zgodnie z rozmieszczeniem podanym w ETA.
Wymiar A moze być mniejszy do 4mm na potrzeby cięcia z arkusza. Cięcie należy wykonywać między otworami na gwoździe.
Nośność charakterystyczna - połączenie belka-belka
| Referencje | Nośność charakterystyczna - połączenie belka-belka - pełne gwoździowanie [kN] | |||||||||
|---|---|---|---|---|---|---|---|---|---|---|
| Łączniki | R1,k = R2.k | |||||||||
| Belka główna | Belka drugorzędna | Długość sworzni [mm] | ||||||||
| szt. | Typ | szt. | Typ | 60 | 80 | 100 | 120 | 140 | 160 | |
| BTALU90 | 16 | CNA4.0x50 | 4 | STD8 | 10.8 | 11.8 | 12.9 | 13.7 | 13.7 | 13.7 |
| BTALU120 | 20 | CNA4.0x50 | 3 | STD12 | 17.3 | 18.2 | 19.4 | 20.7 | 22.3 | 23.9 |
| BTALU160 | 28 | CNA4.0x50 | 4 | STD12 | 28 | 29.5 | 31.2 | 33.3 | 35.7 | 38.2 |
| BTALU200 | 38 | CNA4.0x50 | 5 | STD12 | 39.8 | 41.9 | 44.3 | 47.2 | 50.4 | 53.9 |
| BTALU240 | 44 | CNA4.0x50 | 6 | STD12 | 52.2 | 54.9 | 57.9 | 61.7 | 65.9 | 70.3 |
| BTALU1200/120 | 20 | CNA4.0x50 | 3 | STD12 | 17.3 | 18.2 | 19.4 | 20.7 | 22.3 | 23.9 |
| BTALU1200/160 | 28 | CNA4.0x50 | 4 | STD12 | 28 | 29.5 | 31.2 | 33.3 | 35.7 | 38.2 |
| BTALU1200/200 | 36 | CNA4.0x50 | 5 | STD12 | 39.8 | 41.9 | 44.3 | 47.2 | 50.4 | 53.9 |
| BTALU1200/240 | 44 | CNA4.0x50 | 6 | STD12 | 52.2 | 54.9 | 57.9 | 61.7 | 65.9 | 70.3 |
| BTALU1200/280 | 52 | CNA4.0x50 | 7 | STD12 | 64.6 | 68 | 71.7 | 76.4 | 81.7 | 87.2 |
| BTALU1200/320 | 60 | CNA4.0x50 | 8 | STD12 | 77 | 81 | 85.5 | 91.2 | 97.5 | 104.1 |
| BTALU1200/360 | 68 | CNA4.0x50 | 9 | STD12 | 89.1 | 93.8 | 99 | 105.8 | 113.3 | 121.1 |
| BTALU1200/400 | 76 | CNA4.0x50 | 10 | STD12 | 100.8 | 106.1 | 112.3 | 120.2 | 129 | 137.9 |
| BTALU1200/440 | 84 | CNA4.0x50 | 11 | STD12 | 112.1 | 118 | 125.2 | 134.4 | 144.4 | 154.7 |
| BTALU1200/480 | 92 | CNA4.0x50 | 12 | STD12 | 122.8 | 129.3 | 137.7 | 148.2 | 159.7 | 171.3 |
| BTALU1200/520 | 100 | CNA4.0x50 | 12 | STD12 | 122.8 | 129.3 | 138.4 | 150.5 | 163.1 | 175.8 |
| BTALU1200/560 | 108 | CNA4.0x50 | 12 | STD12 | 122.8 | 129.3 | 138.4 | 150.7 | 164.9 | 179.1 |
| BTALU1200/600 | 116 | CNA4.0x50 | 12 | STD12 | 122.8 | 129.3 | 138.4 | 150.7 | 164.9 | 180.4 |
Minimalna szerokość belki powinna wynosić długości zastosowanego sworznia
Dla belek o nachyleniu β nośności należy zredukować mnożąc je przez współczynnik:
| β | 0° | 15° | 30° | 45° |
| Współczynnik | 1,0 | 0,95 | 0,90 | 0,85 |
Jest to wymagane jedynie dla złączy o ilości sworzni mniejszej niż 7 szt.
Nośność charakterystyczna - połączenie belka-belka - R3,k and R4,k
| Referencje | Nośność charakterystyczna - połączenie belka-belka - pełne gwoździowanie [kN] | ||||||||||
|---|---|---|---|---|---|---|---|---|---|---|---|
| Łączniki | Nośność charakterystyczna - Drewno C24 [kN] | ||||||||||
| Belka główna | Belka drugorzędna | R3,k | R4,k | ||||||||
| szt. | Typ | szt. | Typ | Długość sworzni [mm] | |||||||
| 60 | 80 | 100 | 120 | 140 | 160 | ||||||
| BTALU90 | 16 | CNA4.0x50 | 4 | STD8 | 1.5 | 1.9 | 2.3 | 2.7 | 3.1 | 3.6 | 7.8 |
| BTALU120 | 20 | CNA4.0x50 | 3 | STD12 | 2.2 | 2.9 | 3.5 | 4.2 | 4.8 | 5.6 | 9.8 |
| BTALU160 | 28 | CNA4.0x50 | 4 | STD12 | 2.9 | 3.6 | 4.4 | 5.3 | 6.2 | 7 | 13.7 |
| BTALU200 | 38 | CNA4.0x50 | 5 | STD12 | 3.5 | 4.4 | 5.4 | 6.4 | 7.4 | 8.4 | 17.6 |
| BTALU240 | 44 | CNA4.0x50 | 6 | STD12 | 4.2 | 5.3 | 6.4 | 7.4 | 8.6 | 9.8 | 21.6 |
| BTALU1200/120 | 20 | CNA4.0x50 | 3 | STD12 | 2.2 | 2.9 | 3.5 | 4.2 | 4.8 | 5.6 | 9.8 |
| BTALU1200/160 | 28 | CNA4.0x50 | 4 | STD12 | 2.9 | 3.6 | 4.4 | 5.3 | 6.2 | 7 | 13.7 |
| BTALU1200/200 | 36 | CNA4.0x50 | 5 | STD12 | 3.5 | 4.4 | 5.4 | 6.4 | 7.4 | 8.4 | 17.6 |
| BTALU1200/240 | 44 | CNA4.0x50 | 6 | STD12 | 4.2 | 5.3 | 6.4 | 7.4 | 8.6 | 9.8 | 21.5 |
| BTALU1200/280 | 52 | CNA4.0x50 | 7 | STD12 | 4.8 | 6.1 | 7.3 | 8.5 | 9.9 | 11.3 | 25.5 |
| BTALU1200/320 | 60 | CNA4.0x50 | 8 | STD12 | 5.5 | 6.8 | 8.3 | 9.7 | 11.1 | 12.9 | 29.4 |
| BTALU1200/360 | 68 | CNA4.0x50 | 9 | STD12 | 6.1 | 7.6 | 9.2 | 10.9 | 12.4 | 14.4 | 33.3 |
| BTALU1200/400 | 76 | CNA4.0x50 | 10 | STD12 | 6.7 | 8.3 | 10.1 | 12.1 | 13.8 | 15.8 | 37.2 |
| BTALU1200/440 | 84 | CNA4.0x50 | 11 | STD12 | 7.3 | 9.1 | 11 | 13.2 | 15.2 | 17.2 | 41.2 |
| BTALU1200/480 | 92 | CNA4.0x50 | 12 | STD12 | 7.9 | 9.8 | 11.9 | 14.3 | 16.6 | 18.7 | 45.1 |
| BTALU1200/520 | 100 | CNA4.0x50 | 12 | STD12 | 8.6 | 10.6 | 12.8 | 15.4 | 17.8 | 20.1 | 49 |
| BTALU1200/560 | 108 | CNA4.0x50 | 12 | STD12 | 9.2 | 11.3 | 13.8 | 16.5 | 19.1 | 21.5 | 52.9 |
| BTALU1200/600 | 116 | CNA4.0x50 | 12 | STD12 | 9.8 | 12.1 | 14.7 | 17.6 | 20.4 | 23 | 56.8 |
Minimalna szerokość belki powinna wynosić długości zastosowanego sworznia
Nośności R4 dotyczą wszystkich długości sworzni.
Nośność charakterystyczna - połączenie belka-słup
| Referencje | Nośność charakterystyczna - połączenie belka-słup – gwoździowanie częściowe | ||||||||||
|---|---|---|---|---|---|---|---|---|---|---|---|
| Łączniki | Szerokość słupa | Nośność charakterystyczna - Drewno C24 [kN] | |||||||||
| Element główny | Belka drugorzędna | Min. | R1,k = R2.k | ||||||||
| szt. | Typ | szt. | Typ | Długość sworzni [mm] | |||||||
| 60 | 80 | 100 | 120 | 140 | 160 | ||||||
| BTALU90 | 8 | CNA4.0x50 | 4 | STD8 | 96 | 9 | 9.9 | 10.9 | 11.6 | 11.6 | 11.6 |
| BTALU120 | 12 | CNA4.0x50 | 3 | STD12 | 96 | 14.7 | 15.5 | 16.6 | 17.9 | 19.4 | 20.7 |
| BTALU160 | 16 | CNA4.0x50 | 4 | STD12 | 96 | 23.2 | 24.4 | 26 | 27.9 | 30 | 32 |
| BTALU200 | 20 | CNA4.0x50 | 5 | STD12 | 96 | 32.4 | 34.1 | 36.2 | 38.7 | 41.2 | 43.4 |
| BTALU240 | 24 | CNA4.0x50 | 6 | STD12 | 96 | 42.1 | 44.3 | 46.8 | 49.7 | 52.3 | 53.2 |
| BTALU1200/120 | 12 | CNA4.0x50 | 3 | STD12 | 96 | 14.7 | 15.5 | 16.6 | 17.9 | 19.4 | 20.7 |
| BTALU1200/160 | 16 | CNA4.0x50 | 4 | STD12 | 96 | 23.2 | 24.4 | 26 | 27.9 | 30 | 32 |
| BTALU1200/200 | 20 | CNA4.0x50 | 5 | STD12 | 96 | 32.4 | 34.1 | 36.2 | 38.7 | 41.2 | 43.4 |
| BTALU1200/240 | 24 | CNA4.0x50 | 6 | STD12 | 96 | 42.1 | 44.3 | 46.8 | 49.7 | 52.3 | 53.2 |
| BTALU1200/280 | 28 | CNA4.0x50 | 7 | STD12 | 96 | 52 | 54.7 | 57.5 | 60.5 | 62 | 62 |
| BTALU1200/320 | 32 | CNA4.0x50 | 8 | STD12 | 96 | 61.8 | 65.1 | 68.1 | 70.7 | 70.9 | 70.9 |
| BTALU1200/360 | 36 | CNA4.0x50 | 9 | STD12 | 96 | 71.7 | 75.5 | 78.5 | 79.8 | 79.8 | 79.8 |
| BTALU1200/400 | 40 | CNA4.0x50 | 10 | STD12 | 96 | 81.4 | 85.7 | 88.4 | 88.6 | 88.6 | 88.6 |
| BTALU1200/440 | 44 | CNA4.0x50 | 11 | STD12 | 96 | 91 | 95.8 | 97.5 | 97.5 | 97.5 | 97.5 |
| BTALU1200/480 | 48 | CNA4.0x50 | 12 | STD12 | 96 | 100.3 | 105.6 | 106.4 | 106.4 | 106.4 | 106.4 |
| BTALU1200/520 | 52 | CNA4.0x50 | 12 | STD12 | 96 | 105.5 | 111.1 | 114.6 | 115.2 | 115.2 | 115.2 |
| BTALU1200/560 | 56 | CNA4.0x50 | 12 | STD12 | 96 | 109.9 | 115.7 | 120.3 | 124 | 124.1 | 124.1 |
| BTALU1200/600 | 60 | CNA4.0x50 | 12 | STD12 | 96 | 113.8 | 119.8 | 125 | 130.5 | 133 | 133 |
Minimalna szerokość belki powinna wynosić długości zastosowanego sworznia
Dla belek o nachyleniu β nośności należy zredukować mnożąc je przez współczynnik:
| β | 0° | 15° | 30° | 45° |
| Współczynnik | 1,0 | 0,95 | 0,9 | 0,85 |
Jest to wymagane jedynie dla złączy o ilości sworzni mniejszej niż 7 szt.
Nośności R4 dotyczą wszystkich długości sworzni
Nośności w tabeli można stosować także dla połączenia belka-belka - gwoździowanie częściowe.
Nośność charakterystyczna - połączenie belka-słup - R3.k i R4.k
| Referencje | Nośność charakterystyczna - połączenie belka-słup – gwoździowanie częściowe | |||||||||||
|---|---|---|---|---|---|---|---|---|---|---|---|---|
| Łączniki | Szerokość słupa | Nośność charakterystyczna - Drewno C24 [kN] | ||||||||||
| Element główny | Belka drugorzędna | Min. | R3,k | R4,k | ||||||||
| szt. | Typ | szt. | Typ | Długość sworzni [mm] | ||||||||
| 60 | 80 | 100 | 120 | 140 | 160 | |||||||
| BTALU90 | 8 | CNA4.0x50 | 4 | STD8 | 96 | 1.5 | 1.9 | 2.3 | 2.7 | 2.7 | 2.7 | 3.9 |
| BTALU120 | 12 | CNA4.0x50 | 3 | STD12 | 96 | 2.2 | 2.9 | 3.5 | 4.2 | 4.8 | 5.6 | 5.9 |
| BTALU160 | 16 | CNA4.0x50 | 4 | STD12 | 96 | 2.9 | 3.6 | 4.4 | 5.3 | 6.2 | 7 | 7.8 |
| BTALU200 | 20 | CNA4.0x50 | 5 | STD12 | 96 | 3.5 | 4.4 | 5.4 | 6.4 | 7.4 | 8.4 | 9.8 |
| BTALU240 | 24 | CNA4.0x50 | 6 | STD12 | 96 | 4.2 | 5.3 | 6.4 | 7.4 | 8.6 | 9.8 | 11.8 |
| BTALU1200/120 | 12 | CNA4.0x50 | 3 | STD12 | 96 | 2.2 | 2.9 | 3.5 | 4.2 | 4.8 | 5.6 | 5.9 |
| BTALU1200/160 | 16 | CNA4.0x50 | 4 | STD12 | 96 | 2.9 | 3.6 | 4.4 | 5.3 | 6.2 | 7 | 7.8 |
| BTALU1200/200 | 20 | CNA4.0x50 | 5 | STD12 | 96 | 3.5 | 4.4 | 5.4 | 6.4 | 7.4 | 8.4 | 9.8 |
| BTALU1200/240 | 24 | CNA4.0x50 | 6 | STD12 | 96 | 4.2 | 5.3 | 6.4 | 7.4 | 8.6 | 9.8 | 11.8 |
| BTALU1200/280 | 28 | CNA4.0x50 | 7 | STD12 | 96 | 4.5 | 5.6 | 6.7 | 7.7 | 8.9 | 10.1 | 13.7 |
| BTALU1200/320 | 32 | CNA4.0x50 | 8 | STD12 | 96 | 5.2 | 6.4 | 7.7 | 8.8 | 10.2 | 11.5 | 15.7 |
| BTALU1200/360 | 36 | CNA4.0x50 | 9 | STD12 | 96 | 5.8 | 7.2 | 8.6 | 9.9 | 11.5 | 12.9 | 17.6 |
| BTALU1200/400 | 40 | CNA4.0x50 | 10 | STD12 | 96 | 6.5 | 8 | 9.6 | 11 | 12.7 | 14.4 | 19.6 |
| BTALU1200/440 | 44 | CNA4.0x50 | 11 | STD12 | 96 | 7.1 | 8.8 | 10.5 | 12.1 | 14 | 15.8 | 21.6 |
| BTALU1200/480 | 48 | CNA4.0x50 | 12 | STD12 | 96 | 7.7 | 9.5 | 11.5 | 13.2 | 15.3 | 17.2 | 23.5 |
| BTALU1200/520 | 52 | CNA4.0x50 | 12 | STD12 | 96 | 8.4 | 10.3 | 12.4 | 14.3 | 16.6 | 18.7 | 25.5 |
| BTALU1200/560 | 56 | CNA4.0x50 | 12 | STD12 | 96 | 9 | 11.1 | 13.4 | 15.4 | 17.8 | 20.1 | 27.4 |
| BTALU1200/600 | 60 | CNA4.0x50 | 12 | STD12 | 96 | 9.7 | 11.9 | 14.4 | 16.5 | 19.1 | 21.5 | 29.4 |
Minimalna szerokość belki powinna wynosić długości zastosowanego sworznia
Nośności R4 dotyczą wszystkich długości sworzni.
Właściwości charakterystyczne SDD
| Referencje | Nośność charakterystyczna - Drewno C24 [kN] | ||||||||
|---|---|---|---|---|---|---|---|---|---|
| Łączniki | R1,k = R2.k | ||||||||
| Belka główna | Belka drugorzędna | Długość sworznia [mm] | |||||||
| Ilość | Typ | Ilość | Typ | 93 | 113 | 133 | 153 | 173 | |
| BTALU90 | - | - | - | - | - | - | - | - | - |
| BTALU120 | 22 | CNA4.0x50 | 3 | SDD7.5 | 14.4 | 15.5 | 15.5 | 15.5 | 15.5 |
| BTALU160 | 30 | CNA4.0x50 | 4 | SDD7.5 | 23 | 24.6 | 26.4 | 26.4 | 26.4 |
| BTALU200 | 38 | CNA4.0x50 | 5 | SDD7.5 | 32.2 | 34.3 | 37 | 39.7 | 39.7 |
| BTALU240 | 46 | CNA4.0x50 | 6 | SDD7.5 | 40.4 | 44.1 | 47.5 | 51.4 | 51.4 |
| BTALU1200/120 | 20 | CNA4.0x50 | 3 | SDD7.5 | 14.4 | 15.5 | 15.5 | 15.5 | 15.5 |
| BTALU1200/160 | 28 | CNA4.0x50 | 4 | SDD7.5 | 23 | 24.6 | 26.4 | 26.4 | 26.4 |
| BTALU1200/200 | 36 | CNA4.0x50 | 5 | SDD7.5 | 32.2 | 34.3 | 37 | 39.7 | 39.7 |
| BTALU1200/240 | 44 | CNA4.0x50 | 6 | SDD7.5 | 40.4 | 44.1 | 47.5 | 51.4 | 51.4 |
| BTALU1200/280 | 52 | CNA4.0x50 | 7 | SDD7.5 | 49.4 | 53.1 | 58.2 | 62.8 | 65.4 |
| BTALU1200/320 | 60 | CNA4.0x50 | 8 | SDD7.5 | 57.4 | 62.5 | 68 | 74 | 77.7 |
| BTALU1200/360 | 68 | CNA4.0x50 | 9 | SDD7.5 | 64.6 | 71.1 | 78.1 | 85 | 89.8 |
| BTALU1200/400 | 76 | CNA4.0x50 | 10 | SDD7.5 | 71.7 | 79 | 87.5 | 96 | 101.9 |
| BTALU1200/440 | 84 | CNA4.0x50 | 11 | SDD7.5 | 78.9 | 86.9 | 96.2 | 106.2 | 113.9 |
| BTALU1200/480 | 92 | CNA4.0x50 | 12 | SDD7.5 | 86.1 | 87.8 | 105 | 115.9 | 125.1 |
| BTALU1200/520 | 100 | CNA4.0x50 | 12 | SDD7.5 | 86.1 | 87.8 | 105 | 115.9 | 125.1 |
| BTALU1200/560 | 108 | CNA4.0x50 | 12 | SDD7.5 | 86.1 | 87.8 | 105 | 115.9 | 125.1 |
| BTALU1200/600 | 116 | CNA4.0x50 | 12 | SDD7.5 | 86.1 | 87.8 | 105 | 115.9 | 125.1 |
Belka powinna mieć co najmniej szerokość = długość sworznia.
W przypadku belek o nachyleniu β nośność należy pomnożyć przez współczynnik.
| β | 0° | 15° | 30° | 45° |
| Współczynnik | 1.0 | 0.95 | 0.90 | 0.85 |
Jest to konieczne tylko w przypadku połączenia z mniej niż 7 sworzniami w belce.
Efektywna długość sworznia jest równa całkowitej długości sworznia -13 mm
Nośność charakterystyczna - połączenie belka-belka - R3.k i R4.k (sworznie SDD)
| Referencje | Nośność charakterystyczna - Drewno C24 [kN] | |||||||||
|---|---|---|---|---|---|---|---|---|---|---|
| Łączniki | Nośność charakterystyczna - Drewno C24 [kN] | |||||||||
| Belka główna | Belka drugorzędna | R3,k | R4,k | |||||||
| Ilość | Typ | Ilość | Typ | Długość sworznia [mm] | ||||||
| 93 | 113 | 133 | 153 | 173 | ||||||
| BTALU90 | - | - | - | - | - | - | - | - | - | - |
| BTALU120 | 22 | CNA4.0x50 | 3 | SDD7.5 | 2.9 | 3.5 | 4.2 | 4.8 | 5.6 | 8.8 |
| BTALU160 | 30 | CNA4.0x50 | 4 | SDD7.5 | 3.6 | 4.4 | 5.3 | 6.2 | 7 | 12.7 |
| BTALU200 | 38 | CNA4.0x50 | 5 | SDD7.5 | 4.4 | 5.4 | 6.4 | 7.4 | 8.4 | 16.7 |
| BTALU240 | 46 | CNA4.0x50 | 6 | SDD7.5 | 5.3 | 6.4 | 7.4 | 8.6 | 9.8 | 20.6 |
| BTALU1200/120 | 20 | CNA4.0x50 | 3 | SDD7.5 | 2.9 | 3.5 | 4.2 | 4.8 | 5.6 | 8.8 |
| BTALU1200/160 | 28 | CNA4.0x50 | 4 | SDD7.5 | 3.6 | 4.4 | 5.3 | 6.2 | 7 | 12.7 |
| BTALU1200/200 | 36 | CNA4.0x50 | 5 | SDD7.5 | 4.4 | 5.4 | 6.4 | 7.4 | 8.4 | 16.7 |
| BTALU1200/240 | 44 | CNA4.0x50 | 6 | SDD7.5 | 5.3 | 6.4 | 7.4 | 8.6 | 9.8 | 20.6 |
| BTALU1200/280 | 52 | CNA4.0x50 | 7 | SDD7.5 | 6.1 | 7.3 | 8.5 | 9.9 | 11.3 | 24.5 |
| BTALU1200/320 | 60 | CNA4.0x50 | 8 | SDD7.5 | 6.8 | 8.3 | 9.7 | 11.1 | 12.9 | 28.4 |
| BTALU1200/360 | 68 | CNA4.0x50 | 9 | SDD7.5 | 7.6 | 9.2 | 10.9 | 12.4 | 14.4 | 32.3 |
| BTALU1200/400 | 76 | CNA4.0x50 | 10 | SDD7.5 | 8.3 | 10.1 | 12.1 | 13.8 | 15.8 | 36.3 |
| BTALU1200/440 | 84 | CNA4.0x50 | 11 | SDD7.5 | 9.1 | 11 | 13.2 | 15.2 | 17.2 | 40.2 |
| BTALU1200/480 | 92 | CNA4.0x50 | 12 | SDD7.5 | 9.8 | 11.9 | 14.3 | 16.6 | 18.7 | 44.1 |
| BTALU1200/520 | 100 | CNA4.0x50 | 12 | SDD7.5 | 10.6 | 12.8 | 15.4 | 17.8 | 20.1 | 48 |
| BTALU1200/560 | 108 | CNA4.0x50 | 12 | SDD7.5 | 11.3 | 13.8 | 16.5 | 19.1 | 21.5 | 51.9 |
| BTALU1200/600 | 116 | CNA4.0x50 | 12 | SDD7.5 | 12.1 | 14.7 | 17.6 | 20.4 | 23 | 55.9 |
Belka powinna mieć co najmniej szerokość = długość sworznia.
Nośności R4 dotyczą wszystkich długości sworzni.
Nośność charakterystyczna - połączenie belka-słup (sworznie SDD)
| Referencje | Połączenie belka-słup gwoździowanie częściowe | ||||||||||
|---|---|---|---|---|---|---|---|---|---|---|---|
| Łączniki | Szerokość słupa | Nośność charakterystyczna - Drewno C24 [kN] | |||||||||
| Słup | Belka | Min. | R1,k = R2.k | R4,k | |||||||
| Ilość | Typ | Ilość | Typ | Długość sworznia [mm] | |||||||
| 93 | 113 | 133 | 153 | 173 | |||||||
| BTALU90 | - | - | - | - | 96 | - | - | - | - | - | - |
| BTALU120 | 12 | CNA4.0x50 | 3 | SDD7.5 | 96 | 12.2 | 13.2 | 13.5 | 14.1 | 14.1 | 8.8 |
| BTALU160 | 16 | CNA4.0x50 | 4 | SDD7.5 | 96 | 18.7 | 19.7 | 21.3 | 21.3 | 21.3 | 12.7 |
| BTALU200 | 20 | CNA4.0x50 | 5 | SDD7.5 | 96 | 25.9 | 27.7 | 29.8 | 29.8 | 29.8 | 16.7 |
| BTALU240 | 24 | CNA4.0x50 | 6 | SDD7.5 | 96 | 33.6 | 36.2 | 38.9 | 38.9 | 38.9 | 20.6 |
| BTALU1200/120 | 12 | CNA4.0x50 | 3 | SDD7.5 | 96 | 12.2 | 13.2 | 13.5 | 14.1 | 14.1 | 8.8 |
| BTALU1200/160 | 16 | CNA4.0x50 | 4 | SDD7.5 | 96 | 18.7 | 19.7 | 21.3 | 21.3 | 21.3 | 12.7 |
| BTALU1200/200 | 20 | CNA4.0x50 | 5 | SDD7.5 | 96 | 25.9 | 27.7 | 29.8 | 29.8 | 29.8 | 16.7 |
| BTALU1200/240 | 24 | CNA4.0x50 | 6 | SDD7.5 | 96 | 33.6 | 36.2 | 38.9 | 38.9 | 38.9 | 20.6 |
| BTALU1200/280 | 28 | CNA4.0x50 | 7 | SDD7.5 | 96 | 41.5 | 44.9 | 48.2 | 48.2 | 48.2 | 24.5 |
| BTALU1200/320 | 32 | CNA4.0x50 | 8 | SDD7.5 | 96 | 49.4 | 53.6 | 53.6 | 53.6 | 53.6 | 28.4 |
| BTALU1200/360 | 36 | CNA4.0x50 | 9 | SDD7.5 | 96 | 57.5 | 62.4 | 62.4 | 62.4 | 62.4 | 32.3 |
| BTALU1200/400 | 40 | CNA4.0x50 | 10 | SDD7.5 | 96 | 65.5 | 71.2 | 76.4 | 76.4 | 76.4 | 36.3 |
| BTALU1200/440 | 44 | CNA4.0x50 | 11 | SDD7.5 | 96 | 73.6 | 79.3 | 85.8 | 91.4 | 92.5 | 40.2 |
| BTALU1200/480 | 48 | CNA4.0x50 | 12 | SDD7.5 | 96 | 81.4 | 57.9 | 94.5 | 100.2 | 101.7 | 44.1 |
| BTALU1200/520 | 52 | CNA4.0x50 | 12 | SDD7.5 | 96 | 83.6 | 90.2 | 97.5 | 104.1 | 106.4 | 48 |
| BTALU1200/560 | 56 | CNA4.0x50 | 12 | SDD7.5 | 96 | 85.9 | 92.5 | 100.5 | 107.9 | 111.2 | 51.9 |
| BTALU1200/600 | 60 | CNA4.0x50 | 12 | SDD7.5 | 96 | 85.9 | 94.8 | 103.5 | 111.7 | 115.9 | 55.9 |
Belka powinna mieć co najmniej szerokość = długość sworznia.
W przypadku belek o nachyleniu β nośność należy pomnożyć przez współczynnik.
| β | 0° | 15° | 30° | 45° |
| Współczynnik | 1.0 | 0.92 | 0.90 | 0.85 |
Jest to konieczne tylko w przypadku połączenia z mniej niż 7 sworzniami w belce.
Nośności R4 dotyczą wszystkich długości sworzni.
Nośności z tej tabeli są również ważne dla częściowego połączenia belka do belki.
Nośność charakterystyczna - połączenie belka-słup R3,k i R4,k (sworznie SDD)
| Referencje | Połączenie belka-słup gwoździowanie częściowe | ||||||||||
|---|---|---|---|---|---|---|---|---|---|---|---|
| Łączniki | Szerokość słupa | Nośność charakterystyczna - Drewno C24 [kN] | |||||||||
| Słup | Belka | Min. | R3,k | R4,k | |||||||
| Ilość | Typ | Ilość | Typ | Długość sworznia [mm] | |||||||
| 93 | 113 | 133 | 153 | 173 | |||||||
| BTALU90 | - | - | - | - | 96 | - | - | - | - | - | - |
| BTALU120 | 12 | CNA4.0x50 | 3 | SDD7.5 | 96 | 2.9 | 3.5 | 4.2 | 4.8 | 5.6 | 8.8 |
| BTALU160 | 16 | CNA4.0x50 | 4 | SDD7.5 | 96 | 3.6 | 4.4 | 5.3 | 6.2 | 7 | 12.7 |
| BTALU200 | 20 | CNA4.0x50 | 5 | SDD7.5 | 96 | 4.4 | 5.4 | 6.4 | 7.4 | 8.4 | 16.7 |
| BTALU240 | 24 | CNA4.0x50 | 6 | SDD7.5 | 96 | 5.3 | 6.4 | 7.4 | 8.6 | 9.8 | 20.6 |
| BTALU1200/120 | 12 | CNA4.0x50 | 3 | SDD7.5 | 96 | 2.9 | 3.5 | 4.2 | 4.8 | 5.6 | 8.8 |
| BTALU1200/160 | 16 | CNA4.0x50 | 4 | SDD7.5 | 96 | 3.6 | 4.4 | 5.3 | 6.2 | 7 | 12.7 |
| BTALU1200/200 | 20 | CNA4.0x50 | 5 | SDD7.5 | 96 | 4.4 | 5.4 | 6.4 | 7.4 | 8.4 | 16.7 |
| BTALU1200/240 | 24 | CNA4.0x50 | 6 | SDD7.5 | 96 | 5.3 | 6.4 | 7.4 | 8.6 | 9.8 | 20.6 |
| BTALU1200/280 | 28 | CNA4.0x50 | 7 | SDD7.5 | 96 | 5.6 | 6.7 | 7.7 | 8.9 | 10.1 | 24.5 |
| BTALU1200/320 | 32 | CNA4.0x50 | 8 | SDD7.5 | 96 | 6.4 | 7.7 | 8.8 | 10.2 | 11.5 | 28.4 |
| BTALU1200/360 | 36 | CNA4.0x50 | 9 | SDD7.5 | 96 | 7.2 | 8.6 | 9.9 | 11.5 | 12.9 | 32.3 |
| BTALU1200/400 | 40 | CNA4.0x50 | 10 | SDD7.5 | 96 | 8 | 9.6 | 11 | 12.7 | 14.4 | 36.3 |
| BTALU1200/440 | 44 | CNA4.0x50 | 11 | SDD7.5 | 96 | 8.8 | 10.5 | 12.1 | 14 | 15.8 | 40.2 |
| BTALU1200/480 | 48 | CNA4.0x50 | 12 | SDD7.5 | 96 | 9.5 | 11.5 | 13.2 | 15.3 | 17.2 | 44.1 |
| BTALU1200/520 | 52 | CNA4.0x50 | 12 | SDD7.5 | 96 | 10.3 | 12.4 | 14.3 | 16.6 | 18.7 | 48 |
| BTALU1200/560 | 56 | CNA4.0x50 | 12 | SDD7.5 | 96 | 11.1 | 13.4 | 15.4 | 17.8 | 20.1 | 51.9 |
| BTALU1200/600 | 60 | CNA4.0x50 | 12 | SDD7.5 | 96 | 11.9 | 14.4 | 16.5 | 19.1 | 21.5 | 55.9 |
Belka powinna mieć co najmniej szerokość = długość sworznia.
Nośności R4 dotyczą wszystkich długości sworzni.
Instalacja
Montaż
Mocowanie
Mocowanie do drewna
Połączenie złącza z belką główną następuje za pomocą gwoździ systemowych CNA 4.0 x 40 lub alternatywnie systemowych wkrętów CSA5.0 x l. Długość łączników określa katalog obliczeń statycznych lub zakładka tabela nośności.
Połączenie z belką drugorzędna za pomocą sworzni stalowych STD8 lub STD12 po uprzednim nawierceniu otworów o wyspecyfikowanej średnicy.
Montaż
Montaż
- Przyłóż i zaznacz otwory do nawiercenia w belce drugorzędnej oraz zaznacz głębokość nacięcią do osadzenia wieszaka.
- Natnij belkę drugorzędną na wymaganą głębokość.
- Wsuń wieszak belki i wywierć otwory o wyspecyfikowanej średnicy.
- Za pomocną gwoździ CNA 4,0 x 60 przymocuj wieszak do belki głównej wypełniając wszystkie otwory.
- Wbij sworzeń stalowy w pierwszy otwór i zawieś belkę na wieszaku ustalając jego właściwą pozycję.
- Wbij pozostałe sworznie w otwory belki drugorzędnej.