PIG
Podstawa słupa
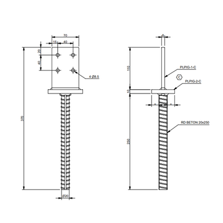
Podstawy słup ukryta do zatopienia w świeżej mieszance betonowej.
Oznaczenie CE
ETA
Klasa użytkowania 3
Ocynkowane ogniowo 50 µm
Środowisko zewnętrzne
EPD
Szczegóły produktu
Właściwości
Materiał
Gatunek Stali:
Stal S235JR / S220JR
Grubość blachy 8,0 mm
Ochrona antykorozyjna:
Cynkowana ogniowo metodą zanurzeniową grubość warstwy cynku (55 µm)
Zalety
- Niewidoczne połączenie
- Prosty montaż do podłoża
- Obliczone statycznie
Zastosowanie
Połączenie
Słup - Beton
Element główny:
- beton
Element drugorzędny:
- drewno lite, drewno kompozytowe, drewno klejone warstwowo.
Stosowane
- Stosowane w konstrukcjach drewnianych oraz zadaszeniach, pergolach, altanach czy tarasach i wszędzie tam gdzie niezbędne jest możliwie jak największe ukrycie złącza (np. ze względów architektonicznych).
Dane techniczne
Nośność charakterystyczna
| Referencje | Łączniki | Nośności charakterystyczne - drewno klasy C24 [kN] | |||||||||||||||
|---|---|---|---|---|---|---|---|---|---|---|---|---|---|---|---|---|---|
| do słupa | R1.k | R2.k | R3.k | R4.k | |||||||||||||
| szt. | Typ | Długość sworznia [mm] | Długość sworznia [mm] | Długość sworznia [mm] | |||||||||||||
| 60 | 80 | 100 | 120 | 60 | 80 | 100 | 120 | 60 | 80 | 100 | 120 | 140 | 160 | ||||
| PIG | 4 | STD8xL | 54.5/kmod | 13.8 | 16 | 18.7 | 20.7 | min (9.4 ; 7.9/kmod) | min (10.9 ; 7.9/kmod) | min (12.7 ; 7.9/kmod) | 7.9/kmod | 3.1 | 4.1 | min (5.9 ; 5.3/kmod) | min (7.9 ; 5.4/kmod) | min (9.4 ; 5.7/kmod) | 6.3/kmod |
Kombinacja obciążeń:
Instalacja
Montaż
Mocowanie i Montaż
Mocowanie podstawy do drewna:
W słupie wykonywane jest nacięcie, w które jest wprowadzana blacha pionowa złącza.
Mocowanie następuje za pomocą sworzni STD Ø8.
Dostępne są szablony montażowe ułatwiające i przyśpieszające prace na budowie.
Mocowanie podstaw do betonu:
Pręt żebrowany 250 mm zatapiana w świeżej mieszance betonowej lub kotwiona chemicznie kotwą AT-HP.
- Przyłuż część górną podstawy do słupa i zaznacz otwory do nawiercenia oraz głębokość nacięcią do osadzenia podstawy słupa.
- Wywierć otwory o wyspecyfikowanej średnicy.
- Natnij słup na wymaganą głębokość.
- Ustal pozycje podstawy słupa i zatop pręt w wyznaczony miejscu w świeżej mieszance betonowej.
- Podstawa pozwala na maksymalnie 50 mm prześwit między fundamentem a słupem.
- Wsuń belkę na podstawę słupa i wbij wszystkie sworznie STD Ø8 w otwory.
Aprobaty i Deklaracje
Deklaracja Właściwości Użytkowych (DoP)
pl-dop-e07-0285-08-s-2.pdf
(349.85 KB)
pl-dop-e07-0285-07.pdf
(186.54 KB)
pl-dop-e07-0285-06.pdf
(186.03 KB)
pl-dop-e07-0285-issue-5.pdf
(183.75 KB)
pl-dop-e07-0285-issue-4.pdf
(183.6 KB)
pl-dop-e07-0285-issue-2.pdf
(122.87 KB)
pl-dop-e07-0285-issue-1.pdf
(121.08 KB)
Aprobaty Techniczne (ETA)
eta-07-0285-2025-11-19.pdf
(9.05 MB)
eta-07-0285-2021-12-09.pdf
(8.11 MB)
eta070285-sst-pb-hd-r6-2018.pdf
(8.84 MB)